
Saddel

Funkis

Ensidig
UNIKA
Arkitekttegnede huse i samarbejde med NODO Arkitekter
Vidste du, at ‘arkitekt’ ikke er en beskyttet titel? Det betyder, at mange byggefirmaer pynter sig med lånte fjer. Vi har en anden tilgang. Vi samarbejder med Nodo Arkitekter, som er eksperter i at gøre drømme til virkelighed.
Et arkitekttegnet hus er meget mere end blot en bolig – det er en unik løsning, der afspejler din personlighed, livsstil og visioner. Hvert hus designes til at udnytte grundens fulde potentiale og skabe en perfekt balance mellem æstetik, funktionalitet og omgivelser.
Med et UNIKA-hus får du en bolig, der skiller sig ud med gennemtænkte detaljer som optimalt lysindfald, rummenes flow og skræddersyede materialer. Resultatet er et hjem, der er tidløst, personligt og helt igennem unikt – skabt til dig og dine drømme.
EGNE HÅNDVÆRKERE OG NØJE UDVALGTE UNDERLEVERANDØRER
Vi har stor fokus på kvalitet og tryghed gennem hele processen. Vi benytter vores egne erfarne håndværkere, som sikrer høj faglighed og præcision i alle detaljer. Derudover samarbejder vi kun med nøje udvalgte underleverandører, der leverer materialer og løsninger, vi kan stå 100% inde for. Denne kombination af eget håndværk og pålidelige partnere gør, at vi kan garantere et resultat, der lever op til dine forventninger – både hvad angår æstetik, funktionalitet og holdbarhed. Med dinBOLI får du et hjem bygget på solide værdier og kompromisløs kvalitet.
BESLUTNINGSPROCESSEN I 4 ENKLE TRIN
1. VÆLG STØRRELSE OG PLANTEGNING
Valget af arkitektur og plantegning sætter rammen for både husets udtryk og funktionalitet. Arkitekturen skal afspejle din stil og passe til omgivelserne, mens plantegningen skal sikre en praktisk indretning, der matcher din hverdag og behov. Gennemtænkte valg skaber et harmonisk og personligt hjem.
2. VÆLG MATERIALER
Materialevalget er afgørende for både husets udseende, funktionalitet og holdbarhed. Udvendigt skal materialer modstå klimaet og skabe et flot udtryk, mens indvendige materialer påvirker komfort, akustik og vedligeholdelse. Gode valg sikrer et stilfuldt, funktionelt og fremtidssikret hjem.
3. EKSTRA TILVALG
Ekstra tilvalg giver mulighed for at skræddersy dit nye hus, så det opfylder dine drømme og behov. Fra eksklusive materialer og moderne teknologi til personlige løsninger i køkken og bad – tilvalg løfter boligen fra standard til unik og gør dit hjem helt dit eget.
1. VÆLG STØRRELSE OG PLANTEGNING
Valget af arkitektur og plantegning sætter rammen for både husets udtryk og funktionalitet. Arkitekturen skal afspejle din stil og passe til omgivelserne, mens plantegningen skal sikre en praktisk indretning, der matcher din hverdag og behov. Gennemtænkte valg skaber et harmonisk og personligt hjem.
4. GODKEND TILBUD
Tilbuddet gennemgås for at sikre, at det dækker alle ønsker og behov og overholder budget og tidsplan. Godkendelse af et byggetilbud kræver grundighed. Først når alt stemmer, underskrives tilbuddet, og projektet kan sættes i gang.
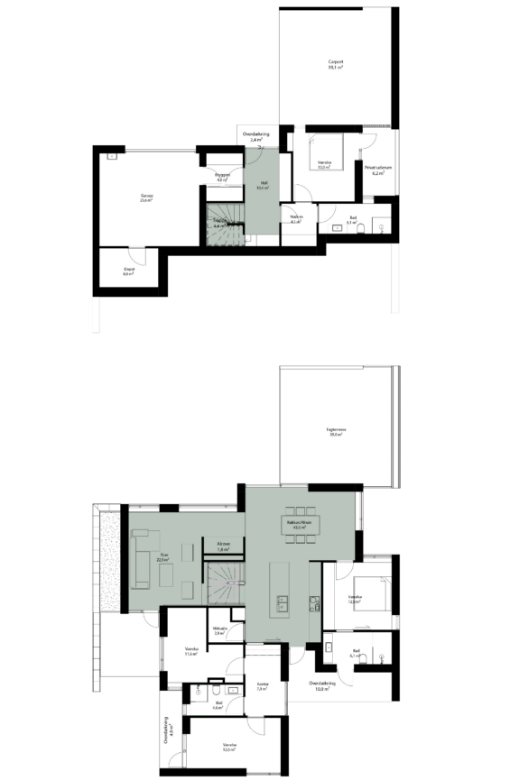
PLANTEGNINGER


Arealfordeling
Areal på hus
Overdækning
Carport
Cykel P
Fællesareal
175,8 m2
25,3 m2
30,9 m2
11,0 m2
74,1 m2


VIL DU HØRE MERE OM arkitekttegnede huse OG PRISniveauer?

JENS HVITVED KNUDSEN
Byggerådgiver
jh@dinboli.dk
Tlf. 93 40 62 33

ALLAN NIELSEN
Byggerådgiver
an@dinboli.dk
Tlf. 71 96 99 85

Nikolaj Kirsch
Byggerådgiver
nkk@dinboli.dk
Tlf. 53 73 73 37
FLERE HUSTYPER
UNIKA
VILLA
FORMAT

ÅBENT HUS
Besøg vores udstillingshus
Katalog
Klik på pilene og gå på opdagelse i vores katalog
